Ficha
CALLE DEL MAESTRO ÁNGEL LLORCA, 7
Madrid - REF. 1301

211 m2

6

3
venta: 1.350.000 €
Descripción

Estupenda vivienda para reformar en Vallehermoso
en la zona de Guzmán el Bueno, presentamos esta extraordinaria propiedad de 211 m² construidos, perfecta para quienes buscan espacio, ubicación y la posibilidad de diseñar su hogar a medida.

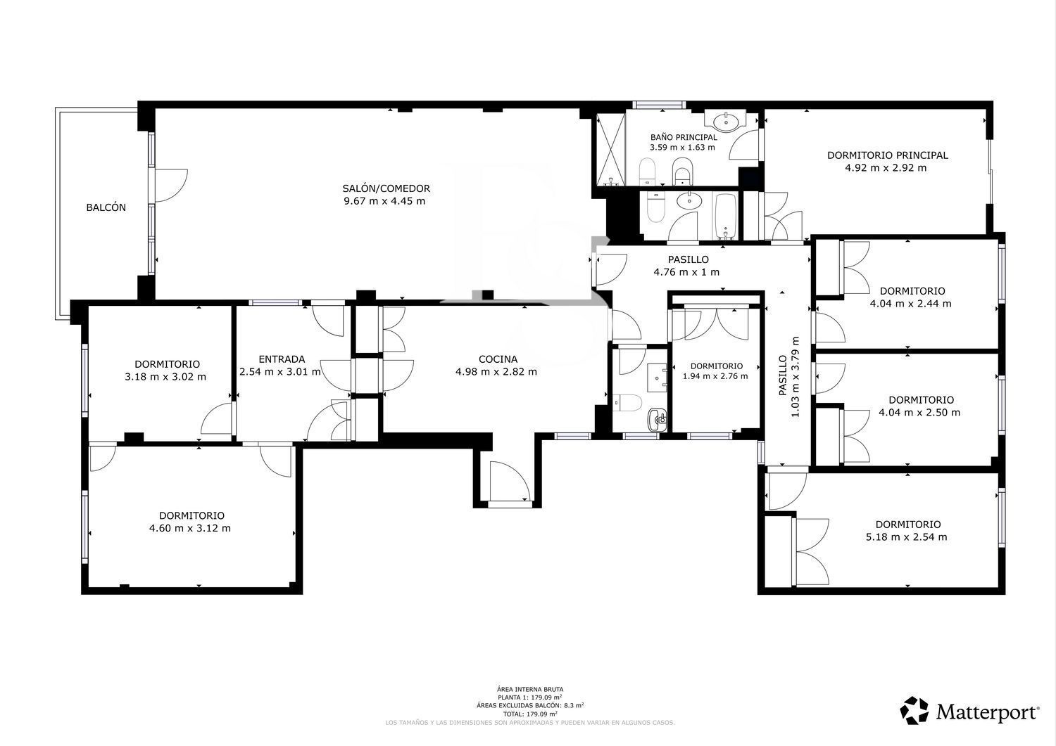
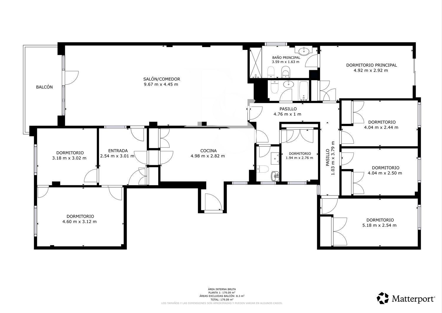
Distribución y características:

-Espectacular salón-comedor de más de 70 m², ideal para crear varios ambientes, sala de estar anexa que se puede unir exterior a la calle y un gran despacho biblioteca de más de 30 metros cuadrados.
-6 dormitorios amplios, 4 de ellos exteriores a luminoso y amplio patio de manzana, con armarios empotrados. El dormitorio principal cuenta con baño en suite de más de 15 metros cuadrados
- Despacho exterior de 30 metros cuadrados.
- 2 baños adicionales, siendo uno un aseo.
- Cocina de gran tamaño para reformar, con amplias ventanas y entrada de servicio.
- La vivienda cuenta con modernas puertas acorazadas de máximo nivel de seguridad tanto en la entrada principal como en la de servicio.

Espacios exteriores:

- Terraza de 14 m² a la calle, con excelente luminosidad
- Balcón a amplio patio de manzana con zonas comunes en dormitorio principal.

Detalles del edificio:

-4ª planta con ascensor
-Finca representativa con portero físico, incluye recogida de basuras en la planta de la vivienda.
-Acceso adaptado para personas con movilidad reducida
-Calefacción central

Ubicación inmejorable:
Situada en una zona muy demandada, a escasos metros del metro Guzmán el Bueno, rodeada de supermercados, farmacias, colegios y todos los servicios necesarios para el día a día. Calle dinámica y con vida, ideal para familias.

Valor añadido:
La propiedad incluye una participación en locales comerciales del edificio, generando una renta mensual de 150 € por propietario, un atractivo extra como inversión.

Una oportunidad única para personalizar cada espacio y crear una vivienda exclusiva en una de las mejores zonas de Madrid.



Características
Precio Venta 1.350.000 €
Precio/m² 6.398
Construidos 211 m2
Dormitorios 6
Baños 3
Terraza
Ascensor
Calificación Energética En trámite
Escalas de eficiencia



Contáctanos

Si deseas más información sobre esta propiedad, por favor, rellena el formulario.

 Sí, he leído y/o acepto las Condiciones de uso y la Política de privacidad
Inmuebles similares:
 
1.450.000 €
Ref. 1291  145 m2  3  2
BARRIO ALMAGRO
 
1.530.000 €
Ref. 1282  130 m2  2  2
CALLE DE QUINTANA